Cortland Dallas Community Support Center

Office Reconfiguration | Documentation, Procurement, Installation

Dallas, TX | July 2023

Cortland’s beautiful Dallas Corporate Office was built out and furnished in 2018, and has remained in tip-top shape. In late 2022, the Dallas employees were outgrowing the number of desks there were available. We came up with a plan to reconfigure the office and use all of the existing furniture, while adding 14 seats. I worked with a furniture manufacturer along with our EVP of Investments and our Office Concierge to accommodate needs of individual employees, teams, and simply add more seats.

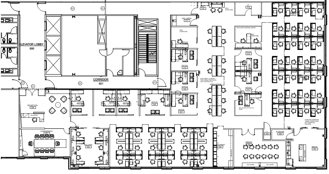
FURNITURE PLAN - BEFORE | CORTLAND DALLAS CSC | DALLAS, TEXAS | JULY, 2023 | CORTLAND DESIGN

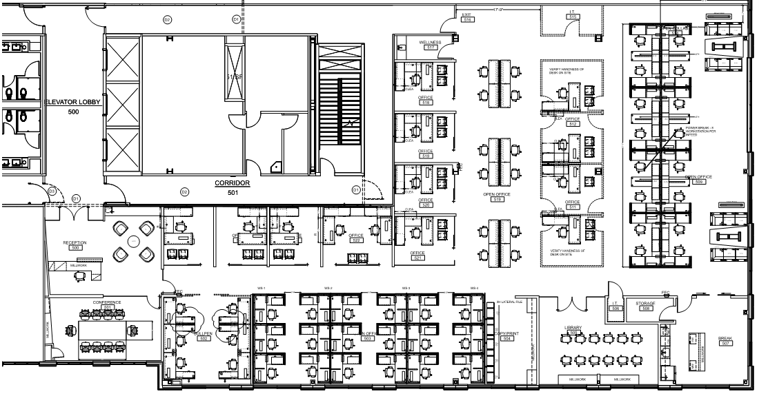
FURNITURE PLAN - AFTER | CORTLAND DALLAS CSC | DALLAS, TEXAS | JULY, 2023 | CORTLAND DESIGN

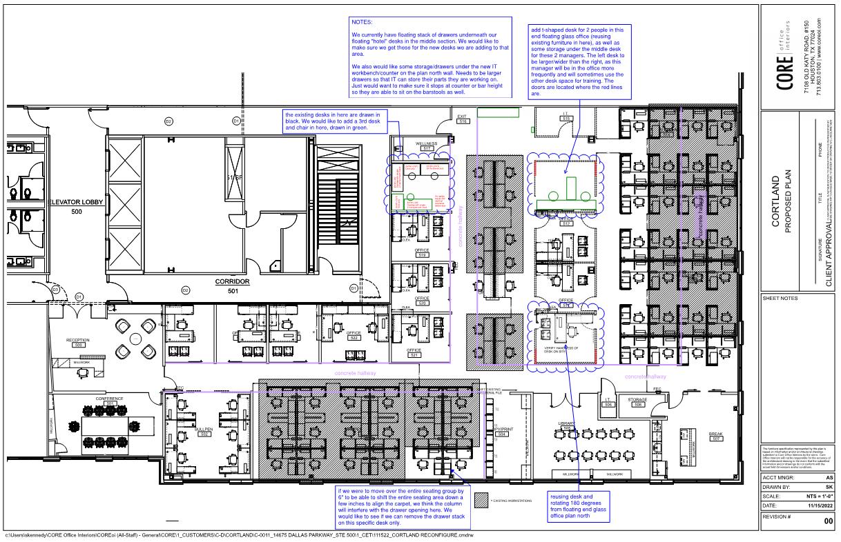
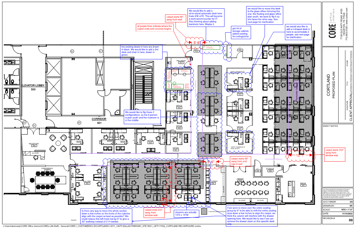
FURNITURE PLAN MARKUPS | CORTLAND DALLAS CSC | DALLAS, TEXAS | JULY, 2023 | CORTLAND DESIGN

Above, I am showing one of the markup rounds we did on the new furniture layout and selection for the reconfiguration. The shaded desks and seats were existing that we would be moving around. The desks that are not shaded are new, or not being touched. We left most offices untouched, only a few had changes to them. Along with our reconfiguration, employees moved desks. Most employees stayed with their same desk type they had before, which made for a nice transition.

In the office, there is a design library with all of our samples and project boards. We took the time over the past year to completely clean out and restock the library with important and updated finished and materials. It has been one of the best projects to work on to date, and made such an impact with the reconfiguration happening at the same time.