Cortland West Plano Leasing & Clubhouse

Clubhouse Renovation | Design, Documentation, Procurement, Installation

Plano, TX | January 2024

Cortland West Plano Clubhouse is my biggest project and renovation yet. This project has been in the works since before I started at Cortland, but shortly inherited this project. This 769 unit property hosts a large clubhouse and leasing center which we have been renovating for over a year. Above you will see the 3 renderings we have produced for the space where the furniture will install in mid-January 2024.

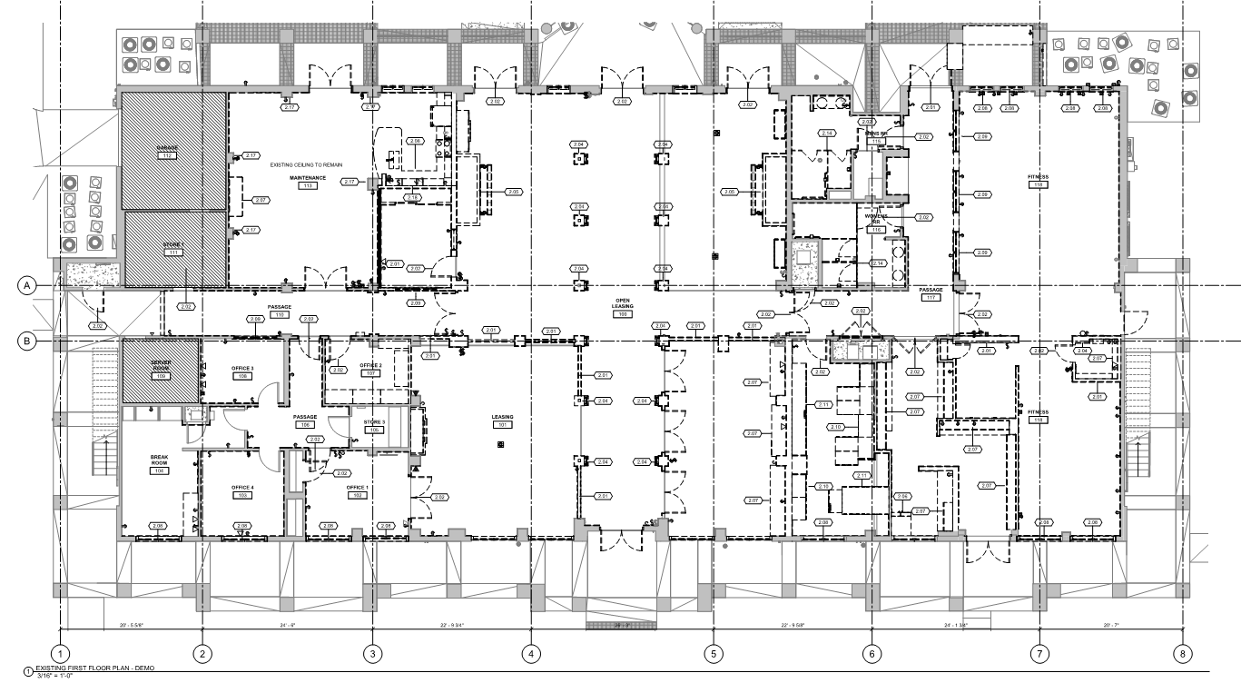
DEMOLITION PLAN | CORTLAND WEST PLANO | PLANO, TEXAS | JUNE, 2022 | CORTLAND DESIGN

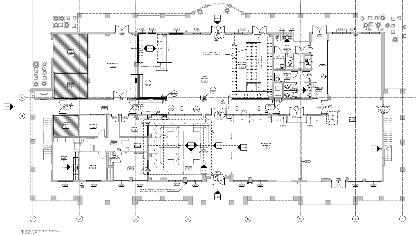
OVERALL ID PLAN | CORTLAND WEST PLANO | PLANO, TEXAS | JUNE, 2022 | CORTLAND DESIGN

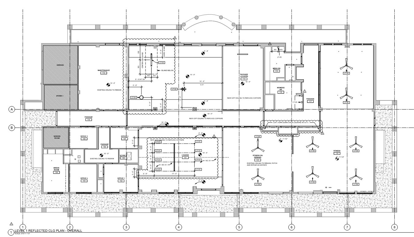
REFLECTED CEILING PLAN | CORTLAND WEST PLANO | PLANO, TEXAS | JUNE, 2022 | CORTLAND DESIGN


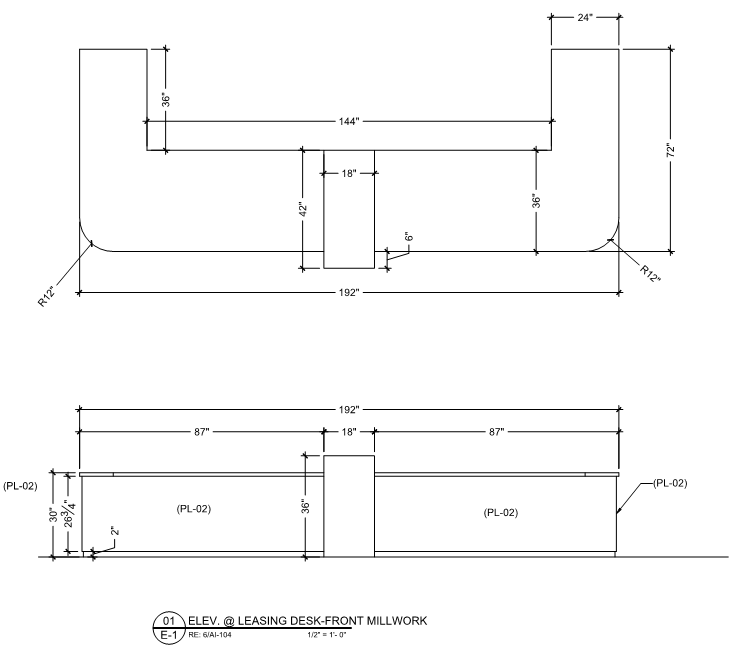
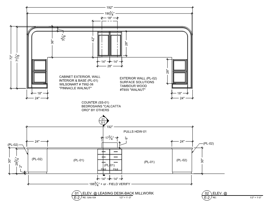
Cortland West Plano was the first custom millwork piece I worked on. Below is the inspiration for the leasing desk, 3D modeled and drawn out in Revit. The millwork desks are built back to back, hosting 4 leasing agents, with a divider screen in the middle you can see in the renderings above.

CUSTOM MILLWORK DESIGN | CORTLAND WEST PLANO | PLANO, TEXAS | JUNE, 2022 | CORTLAND DESIGN

MILLWORK SHOP DRAWINGS | CORTLAND WEST PLANO | PLANO, TEXAS | JUNE, 2023 | CORTLAND DESIGN


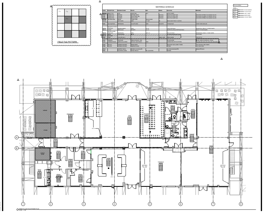
FINISH FLOOR PLAN | CORTLAND WEST PLANO | PLANO, TEXAS | JUNE, 2022 | CORTLAND DESIGN

This project will be a very exciting one to complete. I cannot wait to see and share the completed clubhouse!